25型再生纤维蜂窝板
时间:2024-08-30

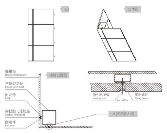
       蜂巢结构是面受力, 它可根据设计的需求大小小进行生产,又不缺乏细致,物美价廉。板与板间隙为15mm,  大板面积平整度好,自由分割,线条明快整齐,体现简单明了的风格.





产品优势: 

1、可最大限度发挥材料力学效果,在同等受力情况下,可大大减轻构件重量,比 钢度强,比强度大;

2、防火、防水、保温、隔音效果好;

3、抗风压、抗震性能强;

4、模块化生产、平整度好、安装方便;

5、十年质保;

6、可回收再利用;

应用范围:

旧小区电梯井、机场、酒店、写字楼、政府大楼、地铁等外墙项目

上一篇
没有了!
下一篇
锡条/锡丝